







Projeto de restauro e arquitetura de interiores - Ouro Preto /MG















































Mas a emoção se intensificou ao nos depararmos com as paredes de pau a pique, uma técnica construtiva que remonta a tempos coloniais. Essas paredes, sustentadas por amarrações de couro cru, guardavam um legado de engenhosidade e tradição. O toque no barro, ainda marcado por mãos humanas que o moldaram, foi algo profundamente comovente. Essas impressões eternizadas no material contavam uma história silenciosa, um testemunho visceral dos tempos escravistas.
Houve um profundo respeito ao lidar com essas paredes, ao entender que aquelas marcas não eram apenas de trabalhadores comuns, mas provavelmente de escravos que ergueram a casa com suas próprias mãos. Cada toque, cada impressão, trazia consigo o peso de uma vida, de um momento no tempo onde a liberdade era restrita e o trabalho árduo, uma imposição cruel. Ao restaurar esses elementos, sentimos que estávamos preservando mais do que uma estrutura física; estávamos protegendo a memória viva de um passado que não deve ser esquecido.
A experiência de restaurar essa casa revelou-se uma jornada, carregada de descobertas e respeito pela história impregnada nas suas paredes. Uma das técnicas mais fascinantes utilizadas foi a abertura de janelas de prospecção nas camadas de tinta. Ao raspar cuidadosamente, descortinamos, camada por camada, as cores originais da casa, ocultas sob 12 camadas de tinta aplicadas ao longo dos anos. Cada cor revelada era como uma viagem ao passado, trazendo à tona a estética e a alma de uma época esquecida. O momento de descobrir a cor original foi de pura emoção — era como se, por um instante, estivéssemos nos conectando diretamente aos antigos moradores, resgatando a essência do que um dia foi aquele espaço.
PERSPECITVAS (clique para ampliar)
FOTOS DA OBRA PRONTA (clique para ampliar)








FOTOS DE DETALHES (clique para ampliar)




Nas primeiras visitas, tudo parecia em bom estado. As paredes recém-pintadas, o piso alinhado, o telhado aparentemente firme. Mas bastou começarmos investigações como pequenas prospecções nas paredes, forros, pisos e madeiramento do telhado para que a realidade se revelasse.
Logo nas primeiras janelas de prospecção descobrimos um problema grave: o madeiramento do telhado estava tomado por cupins. Assim que retiramos as primeiras telhas, as vigas começaram a esfarelar ao toque, mostrando que a infestação vinha de muito tempo e colocava a estrutura em risco de desabamento.
E não parou por aí. O embasamento das paredes, que à primeira vista parecia sólido, escondia um desgaste profundo causado por umidade ascendente. A parte inferior apresentava reboco estufado, manchas de mofo e infiltrações — sinais de que a impermeabilização nunca havia sido feita corretamente. Percebi que aquela reforma exigiria muito mais do que eu imaginava: seriam necessárias intervenções profundas para garantir a segurança e devolver a integridade do imóvel.
























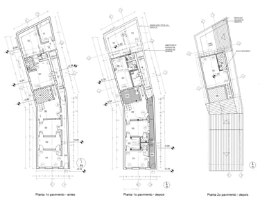
O PROJETO (clique para ampliar)
Foi um choque, mas também o início de uma jornada de aprendizado e respeito pelo tempo e pela história que aquela casa carregava.
Confira algumas fotos da obra:


