Reforma - apartamento em Moema/São Paulo/SP















Perspectivas do projeto (clique para ampliar):
Voltar a projetar em Moema, bairro onde vivi por mais de uma década em São Paulo, foi como revisitar uma parte da minha própria história.
Esse projeto me empolgou tanto que, confesso, até bateu uma saudadezinha da vida na capital — com toda a agitação e aquele ritmo único que só quem já morou aqui entende.
Transformamos por completo esse apartamento de 120m²: integração da sala com a cozinha, novos revestimentos, marcenaria sob medida e um clima contemporâneo com toque afetivo.
O imóvel foi pensado como um investimento imobiliário, por isso optamos por uma base de cores neutras, que trazem leveza e amplitude, sem abrir mão de estilo e personalidade. A ideia era criar um espaço acolhedor, versátil e pronto para novos moradores se encantarem.
Em breve, ele estará disponível para venda.
Interessado?
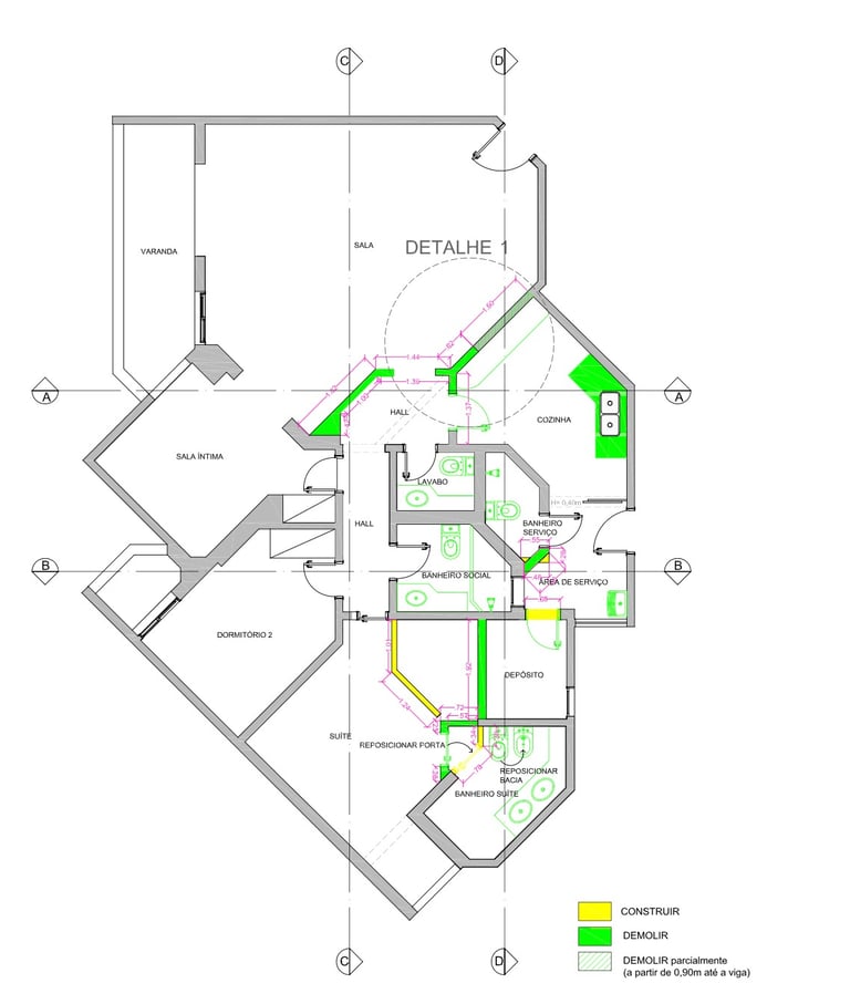
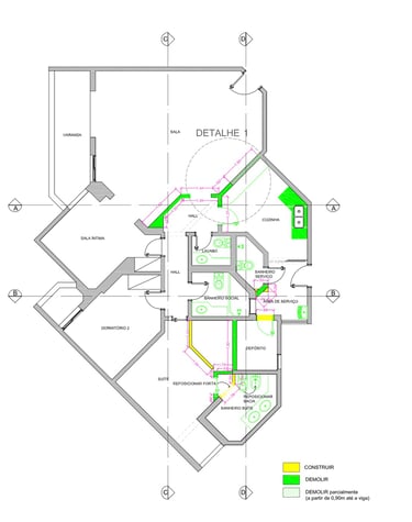
Planta:


Fotos de antes (clique para ampliar):

Fotos da obra (clique para ampliar):











